Soppalco in carpenteria metallica a
doppia altezza
Fasano (BR)
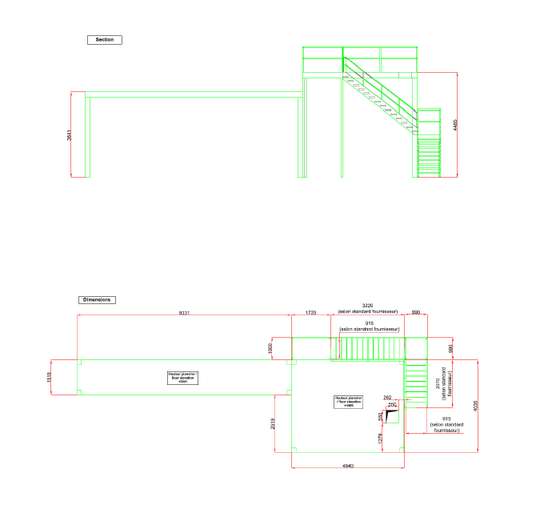
Fornitura e installazione di soppalco in acciaio zincato a caldo, completo di scala metallica con corrimano. La struttura è progettata per garantire resistenza, modularità e sicurezza, ideale per ambienti industriali e tecnici.
Caratteristiche principali:
Dimensioni: ca. 4,94×4,035 m + 9,33×1,515 m
Superficie totale: ca. 35 m² (soppalco + scala)
Altezze variabili: 4,4 m e 3,6 m
Trattamento: zincatura a caldo UNI EN ISO 1461:2009
Collegamento strutturale: tirafondi di fondazione
Scala: gradini in maglia metallica, corrimano tubolare Φ40 H 1,1 m – L 12 m
Parapetto soppalco: tubolare Φ40 H 1,1 m – L 7,3 m
Pavimentazione: lamiera bugnata o Orsogrill
Soluzione robusta e durevole, pensata per ottimizzare lo spazio in verticale e facilitare l’accesso tra i livelli.